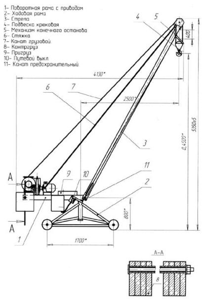
Кран строительный "Пионер"

Кран "Пионер" предназначен для подъема различных грузов при строительстве и ремонте зданий и сооружений с установкой крана на земле или на перекрытии здания.
Кран "Пионер" эксплуатируется при температуре окружающей среды от - 40ºС до + 40ºС, относительной влажности воздуха 80%, скорости ветра 12 м/с.
Максимальный уклон рабочей поверхности при работе с краном "Пионер" 3 градуса.
Группа режима крана "Пионер" и механизмов - М4.
| Технические характеристики | |||
| Грузоподъемность, кг | 500 | 750 | 1000 |
| Высота подъема: | |||
| - при установке на земле, м | 4,5 | 4,5 | 6 |
| - при установке на перекрытие, м | до 50 | до 50 | до 50 |
| Скорость подъема, м/мин | 12 | 8,4 | 44,4 |
| Мощность привода, кВт | 4 | 4 | 4,25 |
| Габаритные размеры, м | 4,2 х 1,78 х 5,4 | 4,28х1,7х5,4 | 4,5 х 2,0 х 6,0 |
| Масса без контр грузов, кг | 480 | 480 | 900 |
| Полная масса, кг | 910 | 921 | 1790 |
| Диаметр каната, мм | 6,9 | 6,9 | 12,0 |
(3812) 38-30-32